Trilocale in vendita

Rende, Via Carlo Carrà
€ 148.000
3 locali 3 locali
111 Mq 111 Mq
1 bagno 1 bagno

Trilocale in vendita

Rende, Via Carlo Carrà

Descrizione annuncio

Saporito - Via Carlo Carrà

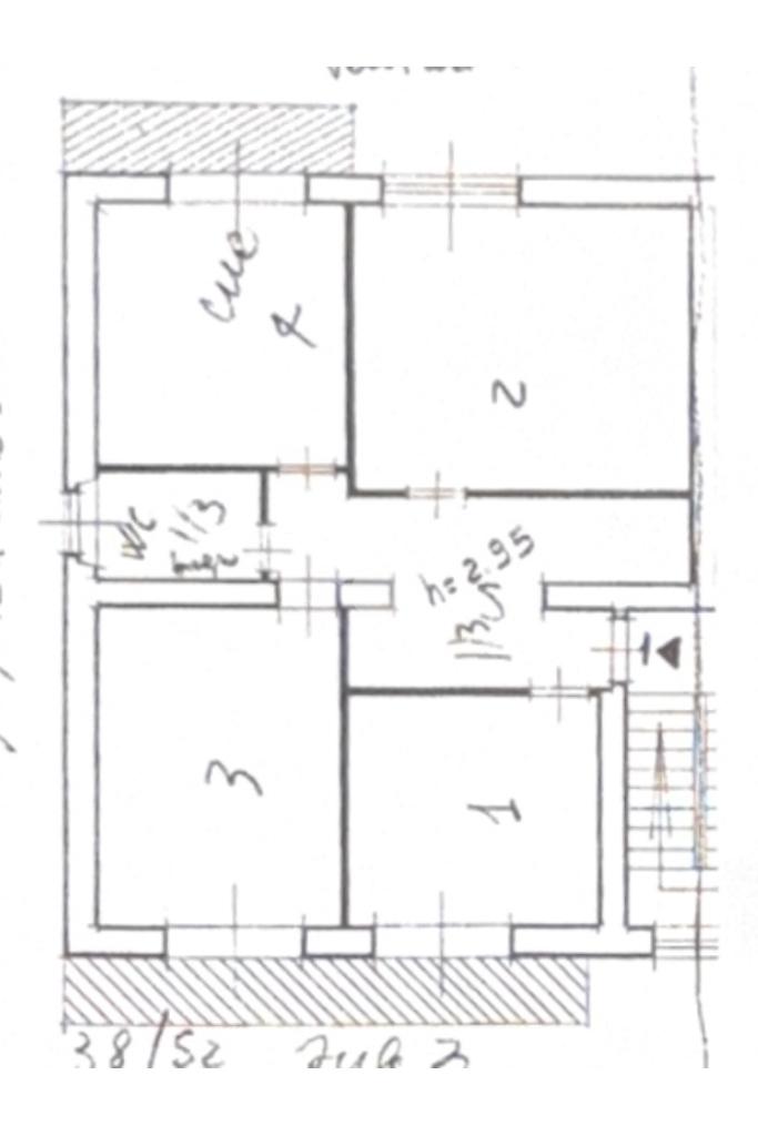
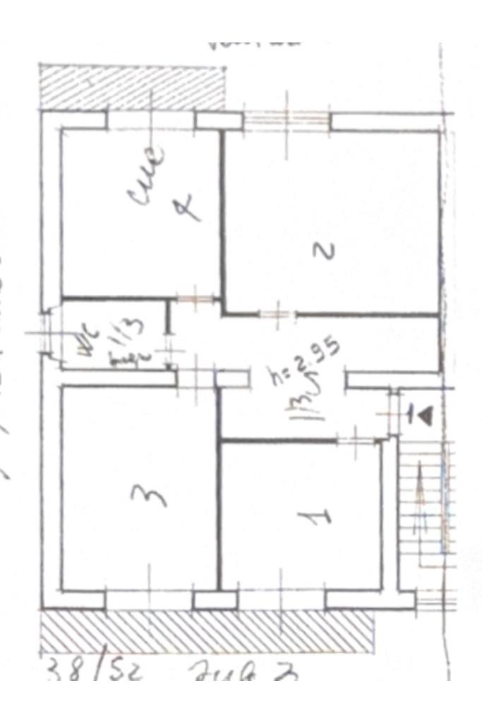
A pochi chilometri dal centro di Commenda proponiamo in vendita comodo trilocale ristrutturato, in contesto tranquillo e curato.

L'appartamento si apre con una comoda zona giorno rappresentata da un salone luminoso, ampio e funzionale, completato da un pratico ripostiglio.

Proseguendo, sulla sinistra, è presente la cucina abitabile, dotata di comodo balcone che rende la zona accogliente e luminosa.
A completare questa zona, un primo bagno.

La zona notte è caratterizzata da una prima camera da letto doppia, dotata di secondo balcone e cabina armadio, una seconda camera da letto matrimoniale ampia, con bagno e accesso diretto al balcone condiviso con la prima camera.

Lo stabile è dotato di cappotto termico e l'immobile è completo di due posti auto e un comodo magazzino.

Per visionare la nostra proposta basta chiamare in agenzia e fissare un appuntamento. Inoltre per chi dovesse acquistarlo mediante l'ottenimento di un mutuo un team di esperti nel settore creditizio sarà in grado di trovare la giusta soluzione per ogni esigenza finanziaria: sono i nostri consulenti della Kiron, società di mediazione creditizia del Gruppo Tecnocasa. In qualsiasi momento una consulenza gratuita e personalizzata per i nostri clienti.

Per essere sempre aggiornati sulle nostre migliori proposte, sulle nostre attività e per avere tante utili informazioni sul mercato immobiliare e non solo Vi invitiamo a cliccare 'mi piace' sulla nostra fan page:

Non dimenticarti di seguirci anche sul nostro profilo instagram per rimanere sempre connesso sulle ultime novità: @tecnocasacommenda

Mostra tutto

Nelle vicinanze

Trasporto pubblico Trasporto pubblico
Castiglione Cosentino
Castiglione Cosentino
2,6 Km
stazione di Cosenza
stazione di Cosenza
2,8 Km
Trasporto pubblico
420 m
Piazza Dell'Unità D'Italia
Piazza Dell'Unità D'Italia
640 m
Ricariche auto elettriche Ricariche auto elettriche
Rende Bilotta | EnelX
680 m
Centro Commerciale Metropolis
810 m
Rende Via Caduti di Nassirya | EnelX
860 m
EnelX EVA+ Conad Rende
1,2 Km
COOP Rende | EnelX
1,3 Km
Scuole Scuole
Ex-Scuola Stancati
350 m
Scuole
630 m
Liceo scientifico-linguistico Pitagora
740 m
Unical ex-cud
1,0 Km
Istituto Tecnico Commerciale Statale "V. Cosentino"
1,2 Km
Farmacia Farmacia
Parafarmacia Conad
1,2 Km
Ospedali Ospedali
ASL
2,9 Km
Supermercati Supermercati
MD
820 m
Iperspar
870 m
Pronto Hobby
1,2 Km
Conad
1,2 Km
Iper Sidis
1,2 Km
Negozi Negozi
IP API Group
1,3 Km
Negozi
1,9 Km
Bar Bar
Mood Social Club
440 m
Mary Gelateria
550 m
Nocturne Place
710 m
Dolci & Capricci
860 m
Bistot De Giuseppe
1,3 Km
Ristoranti Ristoranti
Ristorante Cinese
930 m
Griglieria del Popolo
1,2 Km
Papero Verde
1,3 Km
Autogrill
1,3 Km
Du Spaghi
1,4 Km
Mostra tutto

Caratteristiche

Rif.:
61161812
Piano:
2 di 2 (Piano basso)
Box:
1
Posti auto:
2
Balconi:
2
Camere da letto:
2
Mostra tutto
Prezzo Prezzo
€ 148.000
Rata mutuo Rata mutuo
€ 697 / mese
Spese annue Spese annue
€ 360
Proponi il tuo prezzoProponi il tuo prezzo

Classe Energetica

E
E
E
E
E
E
E
E
E
EP globale non rinnovabile:
263.80 kW h/m² anno
EP globale rinnovabile:
263.80 kW h/m² anno
EP invernale del fabbricato:
EP estiva del fabbricato:
Anno di costruzione:
1970
Riscaldamento:
Autonomo
Tipo impianto:
A radiatori
Tipo alimentazione:
Metano

Ti interessa visionare l'immobile?

Fissa un appuntamento  Fissa un appuntamento

Richiedi informazioni

Clicca su Leggi per aprire l'informativa
* Questi campi sono obbligatori

Calcola il tuo mutuo

Semplice e senza impegno
Anticipo

( % )
Mutuo

( % )

pochi semplici passi

inserisci i tuoi dati
Questionario completato
Grazie per aver richiesto un appuntamento senza impegno con un nostro Consulente del Credito e Assicurativo.

Hai inserito correttamente tutti i dati necessari e a breve riceverai una e-mail con un link da convalidare per inviare i tuoi dati.
Affiliato
Studio Rende Srl
Via F.lli Bandiera, 60 87030 Rende (CS)

Il nostro staff


  • Stefano Leone
    Affiliato

  • Maria Francesca Costabile
    Collaboratrice

  • Alessia Cardillo
    Coordinatrice

  • Martina Vetere
    Collaboratrice
Via F.lli Bandiera, 60 87030 Rende (CS)
Zona: Commenda- Quattromiglia di Rende
Mostra su mappa
Orari: dal lunedì al venerdì: 9:00-13:00 /15.30-20:00; sabato chiusura 19:00; domenica su appuntamento.
Affiliato
Studio Rende Srl
Via F.lli Bandiera, 60 87030 Rende (CS)

2026 Tecnocasa Franchising S.p.A. - P. IVA 08365160152 - Via Monte Bianco 60/A 20089 Rozzano (MI). Ogni agenzia ha un proprio titolare ed è autonoma. Privacy policy | Policy utilizzo | Cookie policy