Trilocale in vendita

Rende, Via Bari - Commenda Di Rende
€ 165.000
3 locali 3 locali
67 Mq 67 Mq
1 bagno 1 bagno

Trilocale in vendita

Rende, Via Bari - Commenda Di Rende

Descrizione annuncio

Roges - Via Bari

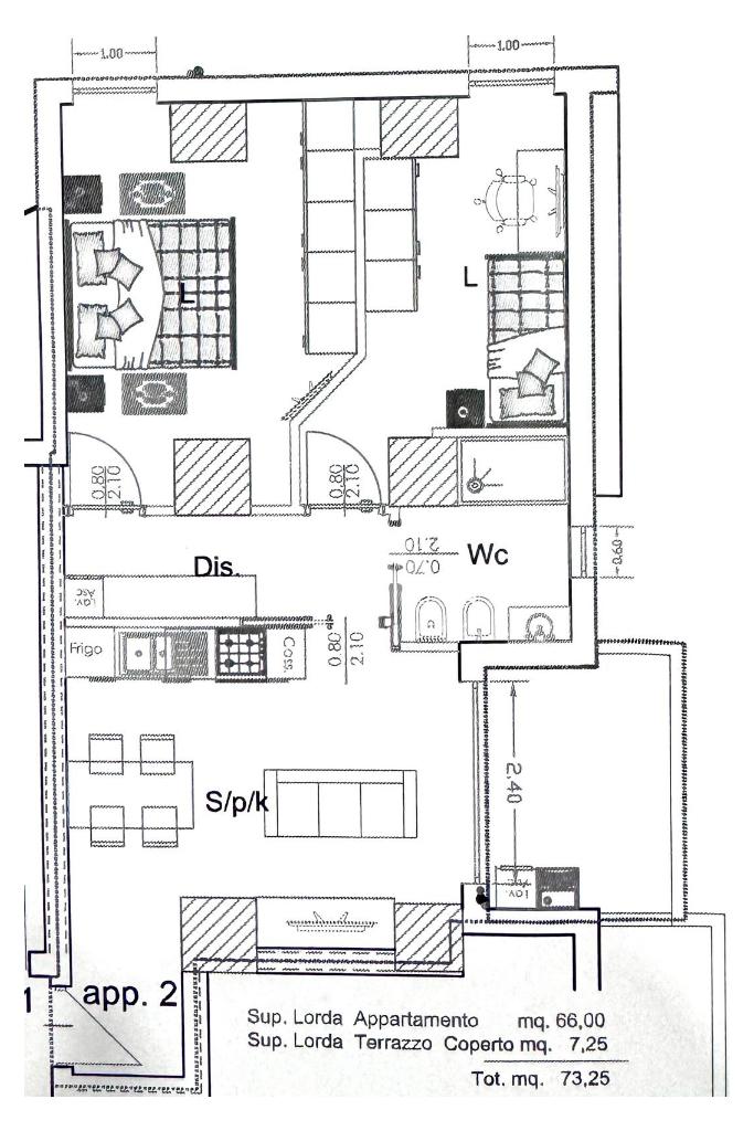
Nel cuore di Roges di Rende, proponiamo in vendita appartamento di nuova costruzione, ideale per chi cerca comfort e modernità.

L'immobile presenta una superficie ben distribuita, caratterizzato da una zona giorno con cucina - soggiorno che si apre su un ampio terrazzo, perfetto per momenti di relax all'aperto.

Attraverso il disimpegno è possibile accedere alla zona notte costituita da due camere da letto, una matrimoniale, l'altra doppia, entrambe finestrate, che garantiscono luminosità e ventilazione naturale, creando un ambiente accogliente e sereno.
Il bagno, moderno e ben rifinito, completa la proprietà.

L'immobile presenta finiture di qualità tra cui infissi in PVC a taglio termico e pompa di calore con termoconvettori, ed è completo di cantina di 7 mq e posto auto.

Il fabbricato è provvisto di cappotto termico.

Un'opportunità unica per chi desidera vivere in una zona ben servita, con tutti i vantaggi di una costruzione recente e all'avanguardia.

La soluzione al momento si trova allo stato rustico e verrà consegnata completa per marzo 2026.

Mostra tutto

Nelle vicinanze

Trasporto pubblico Trasporto pubblico
stazione di Cosenza
stazione di Cosenza
1,7 Km
Cosenza Vaglio Lise
Cosenza Vaglio Lise
1,8 Km
Trasporto pubblico
290 m
Parco Robinson
Parco Robinson
320 m
Cosenza Monaco
Cosenza Monaco
2,1 Km
Ricariche auto elettriche Ricariche auto elettriche
Rende Via Caduti di Nassirya | EnelX
430 m
Rende Busento | EnelX
530 m
Centro Commerciale Metropolis
600 m
COOP Rende | EnelX
1,1 Km
COSENZA Città dei Ragazzi | ENELX
1,2 Km
Scuole Scuole
Scuole
400 m
Liceo scientifico-linguistico Pitagora
690 m
Istituto Tecnico Commerciale Statale "V. Cosentino"
1,3 Km
Ex-Scuola Stancati
1,3 Km
Istituto di Istruzione Superiore Statale di Castrolibero
1,3 Km
Farmacia Farmacia
Parafarmacia Conad
1,9 Km
Ospedali Ospedali
Biocontrol
1,9 Km
Supermercati Supermercati
Iperspar
510 m
MD
900 m
Iper Sidis
1,0 Km
MD Discount
1,4 Km
Conad
1,9 Km
Negozi Negozi
Negozi
1,2 Km
IP API Group
2,5 Km
Bar Bar
Bistot De Giuseppe
150 m
Dolci & Capricci
790 m
Nocturne Place
1,3 Km
Mary Gelateria
1,3 Km
Mood Social Club
1,3 Km
Ristoranti Ristoranti
Ristorante Cinese
1,4 Km
Griglieria del Popolo
1,8 Km
Papero Verde
1,9 Km
Du Spaghi
2,2 Km
Autogrill
2,5 Km
Mostra tutto

Caratteristiche

Rif.:
61175779
Piano:
1 di 6 con ascensore (Piano basso)
Posti auto:
1
Terrazzi:
1
Camere da letto:
2
Arredamento:
Assente
Mostra tutto
Prezzo Prezzo
€ 165.000
Rata mutuo Rata mutuo
€ 771 / mese
Spese annue Spese annue
€ 0
Proponi il tuo prezzoProponi il tuo prezzo

Classe Energetica

A4
A4
A4
A4
A4
A4
A4
A4
A4
EP globale non rinnovabile:
66.25 kW h/m² anno
EP globale rinnovabile:
40.02 kW h/m² anno
EP invernale del fabbricato:
EP estiva del fabbricato:
Anno di costruzione:
2026
Riscaldamento:
Autonomo
Tipo impianto:
Ad aria
Tipo alimentazione:
Metano

Ti interessa visionare l'immobile?

Fissa un appuntamento  Fissa un appuntamento

Richiedi informazioni

Clicca su Leggi per aprire l'informativa
* Questi campi sono obbligatori

Calcola il tuo mutuo

Semplice e senza impegno
Anticipo

( % )
Mutuo

( % )

pochi semplici passi

inserisci i tuoi dati
Questionario completato
Grazie per aver richiesto un appuntamento senza impegno con un nostro Consulente del Credito e Assicurativo.

Hai inserito correttamente tutti i dati necessari e a breve riceverai una e-mail con un link da convalidare per inviare i tuoi dati.
Affiliato
Studio Rende Srl
Via F.lli Bandiera, 60 87030 Rende (CS)

Il nostro staff


  • Stefano Leone
    Affiliato

  • Maria Francesca Costabile
    Collaboratrice

  • Alessia Cardillo
    Coordinatrice

  • Martina Vetere
    Collaboratrice
Via F.lli Bandiera, 60 87030 Rende (CS)
Zona: Commenda- Quattromiglia di Rende
Mostra su mappa
Orari: dal lunedì al venerdì: 9:00-13:00 /15.30-20:00; sabato chiusura 19:00; domenica su appuntamento.
Affiliato
Studio Rende Srl
Via F.lli Bandiera, 60 87030 Rende (CS)

2026 Tecnocasa Franchising S.p.A. - P. IVA 08365160152 - Via Monte Bianco 60/A 20089 Rozzano (MI). Ogni agenzia ha un proprio titolare ed è autonoma. Privacy policy | Policy utilizzo | Cookie policy