Villa singola in vendita

Rende, Via Giacomo Leopardi - Malvitani
€ 215.000
200 Mq 200 Mq
2 bagni 2 bagni

Villa singola in vendita

Rende, Via Giacomo Leopardi - Malvitani

Descrizione annuncio

Marano Marchesato - Via Giacomo Leopardi

In una zona tranquilla di Marano Marchesato, proponiamo in vendita villa indipendente disposta su due livelli, ideale per chi desidera vivere in un contesto riservato, circondato dal verde ma a pochi minuti dai principali servizi.

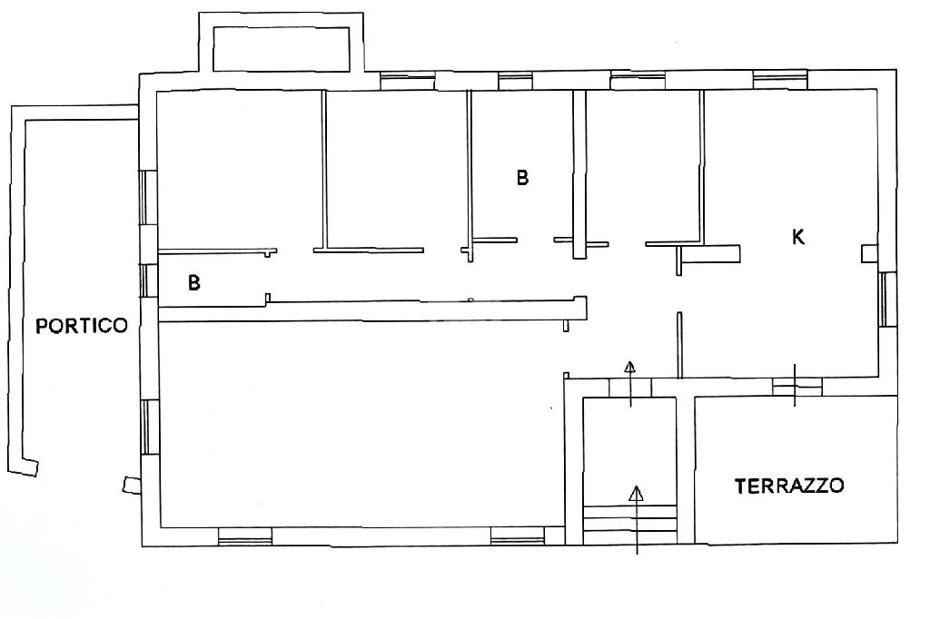
L'immobile è così composto:

- Piano principale, completamente ristrutturato, con ingresso che conduce dal lato destro all'ampia cucina abitabile dotata di uscita diretta sul terrazzo, dal lato sinistro al luminoso e ampio salone, tre camere da letto, di cui due singole e una matrimoniale, tutte finestrate, e due bagni pratici e funzionali. Gli ambienti risultano spaziosi, ben distribuiti e particolparmente accoglienti.

- Piano superiore, attualmente allo stato rustico, che offre la possibilità di personalizzazione secondo le proprie esigenze, ideale per creare una seconda abitazione, uno studio o zona relax.

Completano la proprietà un giardino privato, perfetto per momenti di svago all'aperto, e una tavernetta con cucina.

Soluzione completa e versatile, perfetta per famiglie o per chi desidera una casa indipendente con ampi spazi interni ed esterni.

Per visionare la nostra proposta basta chiamare in agenzia e fissare un appuntamento. Inoltre per chi dovesse acquistarlo mediante l'ottenimento di un mutuo un team di esperti nel settore creditizio sarà in grado di trovare la giusta soluzione per ogni esigenza finanziaria: sono i nostri consulenti della Kiron, società di mediazione creditizia del Gruppo Tecnocasa. In qualsiasi momento una consulenza gratuita e personalizzata per i nostri clienti.

Per essere sempre aggiornati sulle nostre migliori proposte, sulle nostre attività e per avere tante utili informazioni sul mercato immobiliare e non solo Vi invitiamo a cliccare 'mi piace' sulla nostra fan page:

Non dimenticarti di seguirci anche sul nostro profilo instagram per rimanere sempre connesso sulle ultime novità: @tecnocasacommenda

Mostra tutto

Nelle vicinanze

Trasporto pubblico Trasporto pubblico
Castiglione Cosentino
Castiglione Cosentino
2,4 Km
4
4
1,2 Km
Matrangolo
Matrangolo
1,9 Km
Ricariche auto elettriche Ricariche auto elettriche
Rende Unical | EnelX
850 m
Rende Marconi | EnelX
1,9 Km
Rende Parigi | EnelX
2,1 Km
Rende Edison | EnelX
2,3 Km
Rende Rossini | EnelX
2,6 Km
Scuole Scuole
Unical Piccolo Teatro
630 m
Unical Aula Magna
750 m
Unical
810 m
Unical segreterie studenti
820 m
Unical Biblioteca
850 m
Farmacia Farmacia
Farmacia Peluso
2,9 Km
Ospedali Ospedali
ASL
2,2 Km
Supermercati Supermercati
Vivo
550 m
Interspar
1,3 Km
Supermercati
2,3 Km
Pronto Hobby
2,4 Km
Capitano Moda
2,6 Km
Negozi Negozi
Punto Spesa
380 m
IP API Group
2,0 Km
Ristoranti Ristoranti
Fuori Corso
630 m
Mensa Centro Residenziale
750 m
Mensa Martensson
790 m
Arcà
890 m
Le Casette di Zio Rocco
1,5 Km
Mostra tutto

Caratteristiche

Rif.:
61122374
Piano:
Su più livelli di 2
Totale piani:
2
Posti auto:
1
Terrazzi:
1
Camere da letto:
3
Mostra tutto
Prezzo Prezzo
€ 215.000
Rata mutuo Rata mutuo
€ 1.021 / mese
Spese annue Spese annue
€ 0
Proponi il tuo prezzoProponi il tuo prezzo

Classe Energetica

D
D
D
D
D
D
D
D
D
EP globale non rinnovabile:
111.40 kW h/m² anno
EP globale rinnovabile:
71.41 kW h/m² anno
EP invernale del fabbricato:
EP estiva del fabbricato:
Anno di costruzione:
1977
Riscaldamento:
Autonomo
Tipo impianto:
A radiatori
Tipo alimentazione:
Metano

Ti interessa visionare l'immobile?

Fissa un appuntamento  Fissa un appuntamento

Richiedi informazioni

Clicca su Leggi per aprire l'informativa
* Questi campi sono obbligatori

Calcola il tuo mutuo

Semplice e senza impegno
Anticipo

( % )
Mutuo

( % )

pochi semplici passi

inserisci i tuoi dati
Questionario completato
Grazie per aver richiesto un appuntamento senza impegno con un nostro Consulente del Credito e Assicurativo.

Hai inserito correttamente tutti i dati necessari e a breve riceverai una e-mail con un link da convalidare per inviare i tuoi dati.
Affiliato
Studio Rende Srl
Via F.lli Bandiera, 60 87030 Rende (CS)

Il nostro staff


  • Stefano Leone
    Affiliato

  • Giuseppe Costabile
    Responsabile

  • Maria Francesca Costabile
    Collaboratrice

  • Alessandro Brancati
    Collaboratore

  • Alessia Cardillo
    Coordinatrice

  • Andrea De Marco
    Collaboratore

  • Martina Vetere
    Collaboratrice
Via F.lli Bandiera, 60 87030 Rende (CS)
Zona: Commenda- Quattromiglia di Rende
Mostra su mappa
Orari: dal lunedì al venerdì: 9:00-13:00 /15.30-20:00; sabato chiusura 19:00; domenica su appuntamento.
Affiliato
Studio Rende Srl
Via F.lli Bandiera, 60 87030 Rende (CS)

2026 Tecnocasa Franchising S.p.A. - P. IVA 08365160152 - Via Monte Bianco 60/A 20089 Rozzano (MI). Ogni agenzia ha un proprio titolare ed è autonoma. Privacy policy | Policy utilizzo | Cookie policy