Bifamiliare in vendita

Rende, Contarda Padula
€ 189.000
5 locali 5 locali
235 Mq 235 Mq
4 bagni 4 bagni

Bifamiliare in vendita

Rende, Contarda Padula

Descrizione annuncio

Padula - Via due Forni

In zona strategica a pochi minuti dal centro di Rende e Cosenza, proponiamo in vendita villa bifamiliare di nuova costruzione e di ampia metratura.

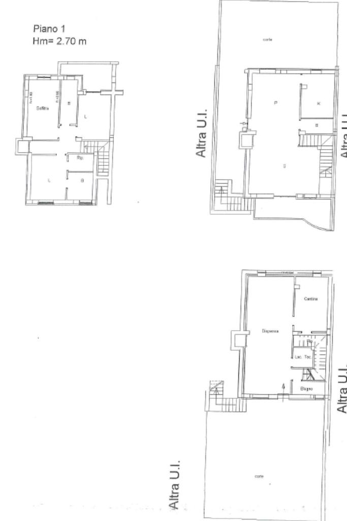
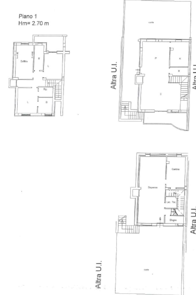
La villa è dislocata su tre livelli, con doppio ingresso e doppio giardino privato, perfetto per i momenti di condivisione con famiglia e amici.

Sono già presenti le divisioni interne: al piano terra troviamo il primo ingresso che si apre nella taverna attualmente divisa con ampio soggiorno con cucina a vista, un primo bagno e un ripostiglio; attraverso le scale interne accediamo al primo piano, composto da comodo salone, cucina e un secondo bagno. Questo piano è accessibile tramite un secondo ingresso.

Infine abbiamo il secondo ed ultimo livello composto da tre camere da letto, di cui una con cabina armadio e bagno in camera, un altro bagno e terrazzino.

E' presente la predisposizione per l'inserimento dell'ascensore interno.

Questa soluzione è perfetta per chi ama gli spazi comodi senza rinunciare alla vicinanza a tutti i servizi.

Mostra tutto

Nelle vicinanze

Ricariche auto elettriche Ricariche auto elettriche
Mendicino Rosario | EnelX
1,8 Km
EnelX Fast EVA+ Cosenza
2,4 Km
COSENZA Città dei Ragazzi | ENELX
2,9 Km
Scuole Scuole
Istituto di Istruzione Superiore Statale di Castrolibero
1,9 Km
Mostra tutto

Caratteristiche

Rif.:
61138257
Piano:
1 di 3 con ascensore (Piano su più livelli)
Posti auto:
1
Terrazzi:
2
Camere da letto:
3
Arredamento:
Assente
Mostra tutto
Prezzo Prezzo
€ 189.000
Rata mutuo Rata mutuo
€ 881 / mese
Spese annue Spese annue
€ 0
Proponi il tuo prezzoProponi il tuo prezzo

Classe Energetica

A4
A4
A4
A4
A4
A4
A4
A4
A4
EP globale non rinnovabile:
64.25 kW h/m² anno
EP globale rinnovabile:
64.25 kW h/m² anno
EP invernale del fabbricato:
EP estiva del fabbricato:
Anno di costruzione:
2020
Riscaldamento:
Autonomo
Tipo impianto:
A pavimento
Tipo alimentazione:
Aria

Ti interessa visionare l'immobile?

Fissa un appuntamento  Fissa un appuntamento

Richiedi informazioni

Clicca su Leggi per aprire l'informativa
* Questi campi sono obbligatori

Calcola il tuo mutuo

Semplice e senza impegno
Anticipo

( % )
Mutuo

( % )

pochi semplici passi

inserisci i tuoi dati
Questionario completato
Grazie per aver richiesto un appuntamento senza impegno con un nostro Consulente del Credito e Assicurativo.

Hai inserito correttamente tutti i dati necessari e a breve riceverai una e-mail con un link da convalidare per inviare i tuoi dati.
Affiliato
Studio Rende Srl
Via F.lli Bandiera, 60 87030 Rende (CS)

Il nostro staff


  • Stefano Leone
    Affiliato

  • Maria Francesca Costabile
    Collaboratrice

  • Alex Gencarelli
    Collaboratore

  • Alessia Cardillo
    Coordinatrice

  • Giuseppe Di Santo
    Collaboratore

  • Martina Vetere
    Coordinatrice
Via F.lli Bandiera, 60 87030 Rende (CS)
Zona: Commenda- Quattromiglia di Rende
Mostra su mappa
Orari: dal lunedì al venerdì: 9:00-13:00 /15.30-20:00; sabato chiusura 19:00; domenica su appuntamento.
Affiliato
Studio Rende Srl
Via F.lli Bandiera, 60 87030 Rende (CS)

2025 Tecnocasa Franchising S.p.A. - P. IVA 08365160152 - Via Monte Bianco 60/A 20089 Rozzano (MI). Ogni agenzia ha un proprio titolare ed è autonoma. Privacy policy | Policy utilizzo | Cookie policy