Porzione di bifamiliare in vendita

Rende, Via Mattia Preti
€ 309.000
4 locali 4 locali
200 Mq 200 Mq
3 bagni 3 bagni

Porzione di bifamiliare in vendita

Rende, Via Mattia Preti

Descrizione annuncio

Rende - Via Mattia Preti

In zona centrale e tranquilla, proponiamo porzione di bifamiliare in vendita, ideale per chi cerca spazio e comfort.

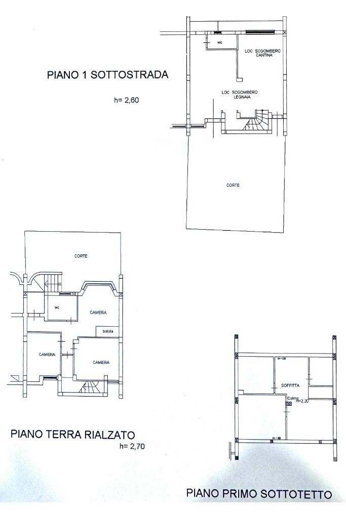
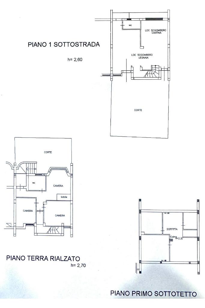
L'immobile si sviluppa su tre livelli, offrendo una distribuzione degli ambienti funzionale e accogliente.

Al piano terra, l'ingresso si apre su un giardino pavimentato con legnaia, perfetto per momenti di relax all'aperto.
Il salone, dotato di camino, crea un'atmosfera calda e accogliente, mentre la cucina abitabile, comoda, si affaccia su un terrazzo, ideale per pranzi all'aperto. Completa il piano un comodo bagno.

Attraverso una scala interna è possibile raggiungere il primo piano, dove si trovano due camere da letto, di cui una matrimoniale e una doppia, entrambe finestrate, un bagno e uno studio con uscita sul terrazzo, offrendo spazi privati e tranquilli.

La mansarda ospita un ulteriore studio, una camera da letto matrimoniale e un bagno, garantendo versatilità e privacy.
L'immobile è stato completamente ristrutturato internamente nel 2019 e dispone di un posto auto.

Una soluzione abitativa che coniuga modernità e praticità.

Mostra tutto

Nelle vicinanze

Trasporto pubblico Trasporto pubblico
Castiglione Cosentino
Castiglione Cosentino
2,2 Km
stazione di Cosenza
stazione di Cosenza
3,0 Km
Trasporto pubblico
400 m
Q8 Supergomma
Q8 Supergomma
510 m
Ricariche auto elettriche Ricariche auto elettriche
Rende Bilotta | EnelX
450 m
EnelX EVA+ Conad Rende
880 m
Rende Rossini | EnelX
1,1 Km
Centro Commerciale Metropolis
1,1 Km
Rende Via Caduti di Nassirya | EnelX
1,2 Km
Scuole Scuole
Ex-Scuola Stancati
350 m
Unical ex-cud
710 m
Scuole
870 m
Liceo scientifico-linguistico Pitagora
1,0 Km
Istituto Tecnico Commerciale Statale "V. Cosentino"
1,2 Km
Farmacia Farmacia
Parafarmacia Conad
920 m
Ospedali Ospedali
ASL
2,5 Km
Supermercati Supermercati
Pronto Hobby
730 m
Conad
910 m
MD
960 m
Supermercati
1,1 Km
Iperspar
1,2 Km
Negozi Negozi
IP API Group
920 m
Negozi
2,1 Km
Bar Bar
Mood Social Club
430 m
Mary Gelateria
520 m
Nocturne Place
680 m
Dolci & Capricci
1,0 Km
Bistot De Giuseppe
1,6 Km
Ristoranti Ristoranti
Ristorante Cinese
840 m
Autogrill
910 m
Griglieria del Popolo
950 m
Du Spaghi
1,0 Km
Papero Verde
1,0 Km
Mostra tutto

Caratteristiche

Rif.:
61174707
Piano:
Su più livelli di 3
Totale piani:
3
Posti auto:
1
Terrazzi:
1
Camere da letto:
3
Mostra tutto
Prezzo Prezzo
€ 309.000
Rata mutuo Rata mutuo
€ 1.443 / mese
Spese annue Spese annue
€ 840
Proponi il tuo prezzoProponi il tuo prezzo

Classe Energetica

C
C
C
C
C
C
C
C
C
EP globale non rinnovabile:
102.01 kW h/m² anno
EP globale rinnovabile:
90.50 kW h/m² anno
EP invernale del fabbricato:
EP estiva del fabbricato:
Anno di costruzione:
2013
Riscaldamento:
Autonomo
Tipo impianto:
A radiatori
Tipo alimentazione:
Metano

Ti interessa visionare l'immobile?

Fissa un appuntamento  Fissa un appuntamento

Richiedi informazioni

Clicca su Leggi per aprire l'informativa
* Questi campi sono obbligatori

Calcola il tuo mutuo

Semplice e senza impegno
Anticipo

( % )
Mutuo

( % )

pochi semplici passi

inserisci i tuoi dati
Questionario completato
Grazie per aver richiesto un appuntamento senza impegno con un nostro Consulente del Credito e Assicurativo.

Hai inserito correttamente tutti i dati necessari e a breve riceverai una e-mail con un link da convalidare per inviare i tuoi dati.
Affiliato
Studio Rende Srl
Via F.lli Bandiera, 60 87030 Rende (CS)

Il nostro staff


  • Stefano Leone
    Affiliato

  • Maria Francesca Costabile
    Collaboratrice

  • Alessia Cardillo
    Coordinatrice

  • Martina Vetere
    Collaboratrice
Via F.lli Bandiera, 60 87030 Rende (CS)
Zona: Commenda- Quattromiglia di Rende
Mostra su mappa
Orari: dal lunedì al venerdì: 9:00-13:00 /15.30-20:00; sabato chiusura 19:00; domenica su appuntamento.
Affiliato
Studio Rende Srl
Via F.lli Bandiera, 60 87030 Rende (CS)

2026 Tecnocasa Franchising S.p.A. - P. IVA 08365160152 - Via Monte Bianco 60/A 20089 Rozzano (MI). Ogni agenzia ha un proprio titolare ed è autonoma. Privacy policy | Policy utilizzo | Cookie policy